function reEnable(){ return true } if (typeof document.onselectstart!="undefined") document.onselectstart=new Function ("return false") else{ document.οnmοusedοwn=disableselect document.οnmοuseup=reEnable }

桁架机械手经典案例技术规格书-板材-500kg

2023-01-13 15:59:00
大象龙门
原创
1442
摘要:特鲁门桁架机械手经典案例中的阳极板板材搬运机械手的设计规格书。

一、 设备使用环境

1.1 抗震设防烈度:6度,加速度0.05g。

1.2 环境温度:-10ºC~45ºC(不结冰)。

1.3 相对湿度:≤80%,不结露。

1.4 设备噪声:75dB,符合相关国际标准。

1.5 作业区域里不应该有以下气体和粒子:可燃性气体、腐蚀性气体,油性粒子及水气,粉尘。

1.6 地面基础:甲方负责项目的土建设施和设备基础(含设备所需预埋和管道预埋、电缆井等),乙方负责提供具体的土建基础需求供甲方配合设计、施工

二、 设备作业对象


设备满足以下工件的抓取:

单片重量380kg~450kg,不含耳尺寸约:988×976×54mm

 阳极板板材搬运机械手搬运实物

3.2.1 阳极板实物图

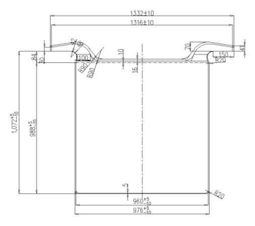
 阳极板尺寸图

3.2.2 阳极板尺寸图


三、 设备供电要求

3.1 电力网络为TN-S网络(三相五线制)。

3.2 在下列供电条件下系统应能满负荷正常运行:

电压:三相380VAC,±10%,单相220VAC,±10%。

交流电频率:50Hz±0.5Hz。

3.3 用户负责将380VAC动力电源从配电房引至现场总配电柜(我方提供)内主令开关上端,我方提供配电箱容量设计,具体电路自行设计。

3.4 建筑接地系统,采用生产设备工作接地、保护接地和建筑的防雷接地连接在一起,即采用联合接地方式,联合接地的电阻值要求不大于4Ω。

四、 气源及场地要求

4.1 压缩空气、特种气接入用户厂房立柱并安装截止阀;

4.2 不结露,压缩空气压力:0.6-0.8Mpa;每分钟气量>200升;

4.3 净空高度:>3.6m;

4.4 车间地面为混凝土地面,每平米承载力>5 吨;

4.5 地面平整,每5米 距离 高度差应 <2mm;

五、 设计制造执行的主要标准

5.1 GB/T 31052.10-2016 起重机械检查与维护规程 第10部分:轻小型起重设备

5.2 GB/T 5972 起重机 钢丝绳 保养、维护、安装、检验和报废

5.3 GB 6067.1-2010 起重机械安全规程 第1部分:总则

5.4 GB/T 10051.2 起重吊钩 第2部分:锻造吊钩技术条件

5.5 GB/T 10051.3 起重吊钩 第3部分:锻造吊钩使用检查

5.6 GB/T 31052.1-2014 起重机械 检查与维护规程 第1部分:总则

5.7 GB/T 5226.1-2019机械电气安全 机械电气设备 第1部分:通用技术条件

5.8 GB/T 37415-2019 桁架式机器人通用技术条件

5.9 GB/T 12642-2013 工业机器人 性能规范及其试验方法

5.10 GB 11291.2-2013 机器人与机器人装备 工业机器人的安全 要求 第2部分_机器人系统

5.11 GB 11291.1-2011 工业环境用机器人  安全要求  第1部分:机器人

5.12 GB/T 17421.2-2000 机床检验通则 第2部分_数控轴线的定位精度和重复定位精度的确定

六、 设备规格

6.1 参数表

阳极板搬运机械手 参数表

外形尺寸(mm

8700x1600x7600

材质

Q235钢材

总功率

22.5KW

电压

三相380V

额定载荷

500Kg

重复定位精度

±2mm

X轴行程

4150mm

X轴速度

1.5m/s

X轴驱动

齿轮齿条

Z轴行程

2250mm

Z轴速度

0.9m/s

Z轴驱动

齿轮齿条

R轴旋转

90°

R轴速度

5r/min

R轴驱动

齿轮齿圈

6.2 工作制

工作制

8小时/班,2班/天,共工作16小时

6.3 噪音

单体设备全速运行设备噪音

75db

6.4 结构材质

主体结构

Q235钢材

6.5 设备喷涂及颜色

立柱

RAL9003信号白/RAL7015浅橄榄灰

Z轴

RAL9003信号白

X轴横梁

RAL9003信号白

夹具

RAL9003信号白

Y轴横梁

RAL9003信号白

电控柜

RAL7035灰

电控柜底座

黑色

参考,最终以用户要求为准

6.6 阳极板板材搬运机械手尺寸图

阳极板板材搬运机械手尺寸图

6.7 阳极板板材搬运机械手轴测图

阳极板取板桁架机械手轴侧图

发表评论
评论通过审核后显示。
文章分类
热门文章
联系我们
联系人: 刘工
电话: 13991191898
Email: wxg@truman.com.cn
微信: lcqn2020
地址: 北京市密云区经济开发区西统路8号